Київ, вул. Велика Васильківська, 39, оф. 403

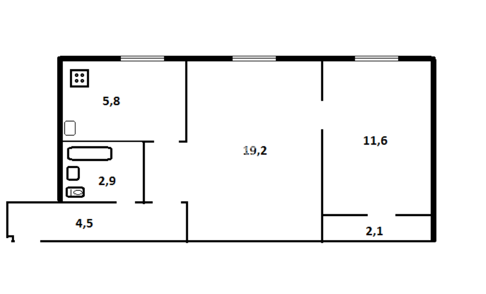
2-комн. квартира, 46.1 м²

Київ / Солом'янський / Втішний / Білецького Академіка, 6
К-ть кімнат
2
Площа
46.1 / 28.9 / 5.8
Поверх
1 из 5
Рік побудови
1965
Хотина Марина Анатольевна

Опис

Продажа 2х комнатной квартиры по улице Белецкого академика 6.Квартира расположена на 1 этаже 5 этажного дома,в тихом,зеленом дворе,без шумных дорог рядом.Площадь:46,1/28,9/5,8.Освобождена от ненужных вещей и требует ремонта.Все для вашего дизайна .Рядом скоросной трамвай,пешком 7 минут.Поликлиника,школы,сады,супермаркеты в пешей доступности.Ваши предложения по цене обсудим.С коллегами не сотрудничаю.

Тип правовстановлюючого документа

Св-во про спадщину (2025р.)